INDEPENDENT WITH SMALL TERRACE – GIUDECCA

Vicolo dell'Olivo, Ortigia, Siracusa, Sicilia, 96100

Key Details

Status
For Sale
Type
Apartment
ID
IA3211
Number of rooms
6
Baths
2

Overview

For sale in the Giudecca district of Ortigia, a charming independent apartment set within an elegant period building that has undergone a careful conservative restoration.
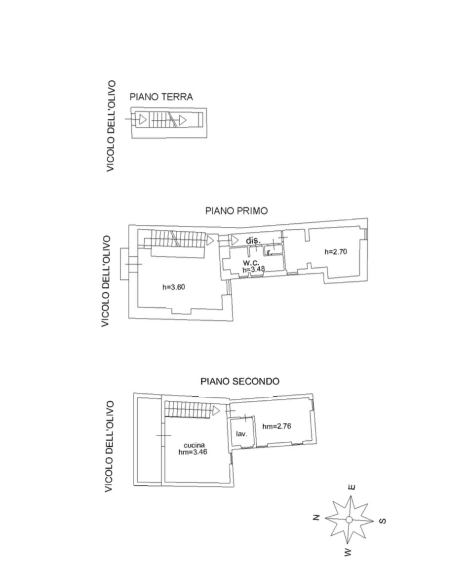
Access is via a characteristic 19th-century stone staircase leading to the first floor, which features a welcoming living room with fireplace and a balcony overlooking the picturesque alley, a bedroom, and a bathroom with a window facing the inner courtyard.
On the second floor, a bright and spacious living area opens onto a large kitchen with a terrace on the same level, along with a second bathroom, also overlooking the courtyard, and a study/guest room.

The property has been tastefully renovated, blending modern design with the original architectural character of the building.
Equipped with heating and cooling fan-coil units, it represents an ideal choice both as an investment and as a comfortable home for year-round living, thanks to its inviting atmosphere and the authentic charm of Ortigia.

Amenities

Air conditioning
fireplace
Balconies
Terrace

Floor Plans

Explore the Area

Transportation
Restaurants
Shopping
Cafes & Bars
Arts & Entertainment
Fitness

Similar Properties